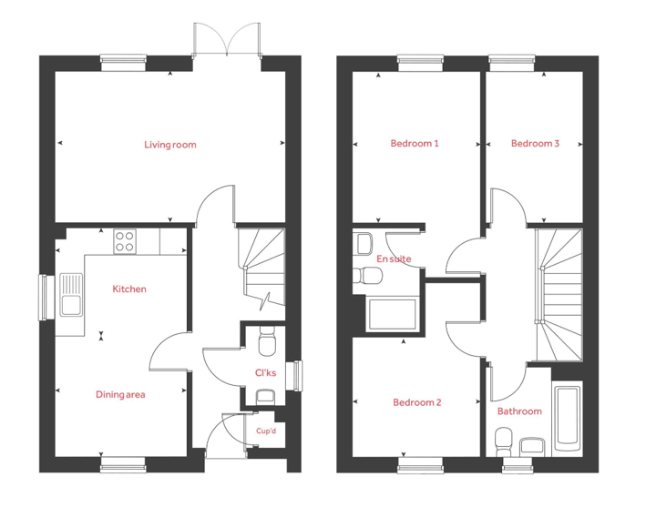
Plot 304 - The Elmslie
£345,000
Available
Semi-detached House

Description

The Elmslie boasts a sizeable living room with dual views over the garden. The ground floor also features a kitchen/dining room: separate spaces for cooking and dining, which creates a sociable space in which to entertain. With great living spaces, three bedrooms, ample storage and generous provision of bathrooms, the Elmslie is great for a growing family – or for a smaller family or young couples there are considerable opportunities to make the most of these great spaces.

Council tax band

TBC